Buscador de propiedades
logotipo e-viviendas

Local en Venta

calle valladolid 3

Albacete / Albacete.   02001

Propiedad ID: 40512
Actualizado: 28/10/2025

160.000€
Negociable

Superficie m2
105 m2
Estado
Casi nuevo
Habitaciones/despachos
4
Baños
1
Certificado Energético
C

LocalizaciÓn


Características interiores

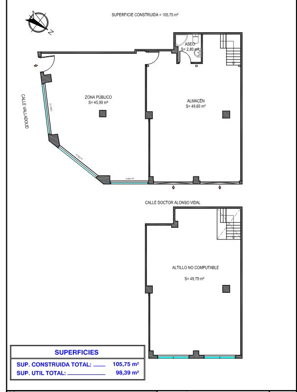
Local comercial de 105 m² con grandes posibilidadesbrbrsuperficie: 105 m².brbrdistribución actual: oficina amplia, dos cocheras grandes, baño y doble altura que aporta gran luminosidad natural.brbrinstalaciones:brbrluz trifásica y cuadro de luces independiente.brbrcontadores individuales de gas y agua (gestionados por la comunidad).brbrsalida de humos de 35 cm de diámetro y chimenea, apto para posible transformación en vivienda o uso comercial.brbraire acondicionado tipo casete de 6.000 frigorías con bomba de calor en la oficina.brbrpersianas motorizadas.brbrcalefacción en la oficina.brbracceso: entrada de vehículos al garaje sin necesidad de vado, con paso de peatones.brbrcomunidad: sin gastos de comunidad, al no haber servicios comunes.brbrubicación: muy cercano a estación de tren, colegio, parque, farmacia, supermercado y parada de autobús frente al local.brbrideal para oficina, negocio o incluso vivienda gracias a su altura y luminosidad.br0 gastos de comunidadbrpara más información, no dudes en llamar o enviar whatsapp. br

Características exteriores

2 plazas d garaje

Condiciones de negociación

Llama y pregunta sin problema. precio negociable.


Otras caracerísticas

  • Aire acondicionado
  • Calefacción
  • Electrodomésticos
  • Internet
  • Garaje privado
  • Transporte cerca



Contacta ahora

  • 610-752-542
  
Local en Venta
4 1
Sup: 105 m2
Local Albacete

160.000€

Negociable

Actualizado: 28/10/2025

Albacete - Albacete
calle valladolid 3
Anuncio:40512
610-752-542 contacto